21 Long Meadow, Skipton, BD23 1BH
£285,000Sold Subject To Contract
Please complete the form below and a member of staff will be in touch shortly.
Including the great advantage of a generous tandem garage/workshop together with private driveway parking and attractive gardens to both the front and the rear, this traditional three bedroom 1970's dormer semi enjoys a pleasant position within the well-respected 'Spring Gardens' area of Skipton enjoying views toward the moors from the first floor elevation.
The property offers a versatile layout including a two double bedrooms and bathroom to the first floor together with a ground floor bedroom that could be used in a variety of configurations. The property offers great potential for further modernisation and/or extension subject to necessary approval and is equipped with gas central heating together with UPVC sealed unit double glazing.
The increasingly popular market town of Skipton has won many accolades in recent years, being independently judged to be one of the best areas to live in the UK via multiple media sources. Catering to residents of all ages, the town offers the perfect combination of excellent schooling, easy access to countryside and an extensive choice of leisure, shopping and recreational facilities.
The town is intersected by the scenic Leeds/Liverpool canal and is well known for its Medieval Church and Castle together with a bustling High Street featuring an outdoor market on the cobbled 'setts' four days a week. The town offers an excellent mix of independent shops, pubs, and cafes in addition to having well known branded stores and a choice of fashionable bars and restaurants. There are excellent public transport links, including a railway station providing regular daily services to Leeds and Bradford. The towns enjoys an annual programme of community events and festivals, attracting an ever-increasing degree of tourism. In addition, the beautiful Yorkshire Dales National Park is only a short drive away to the north, offering some of the finest countryside and scenery in the UK.
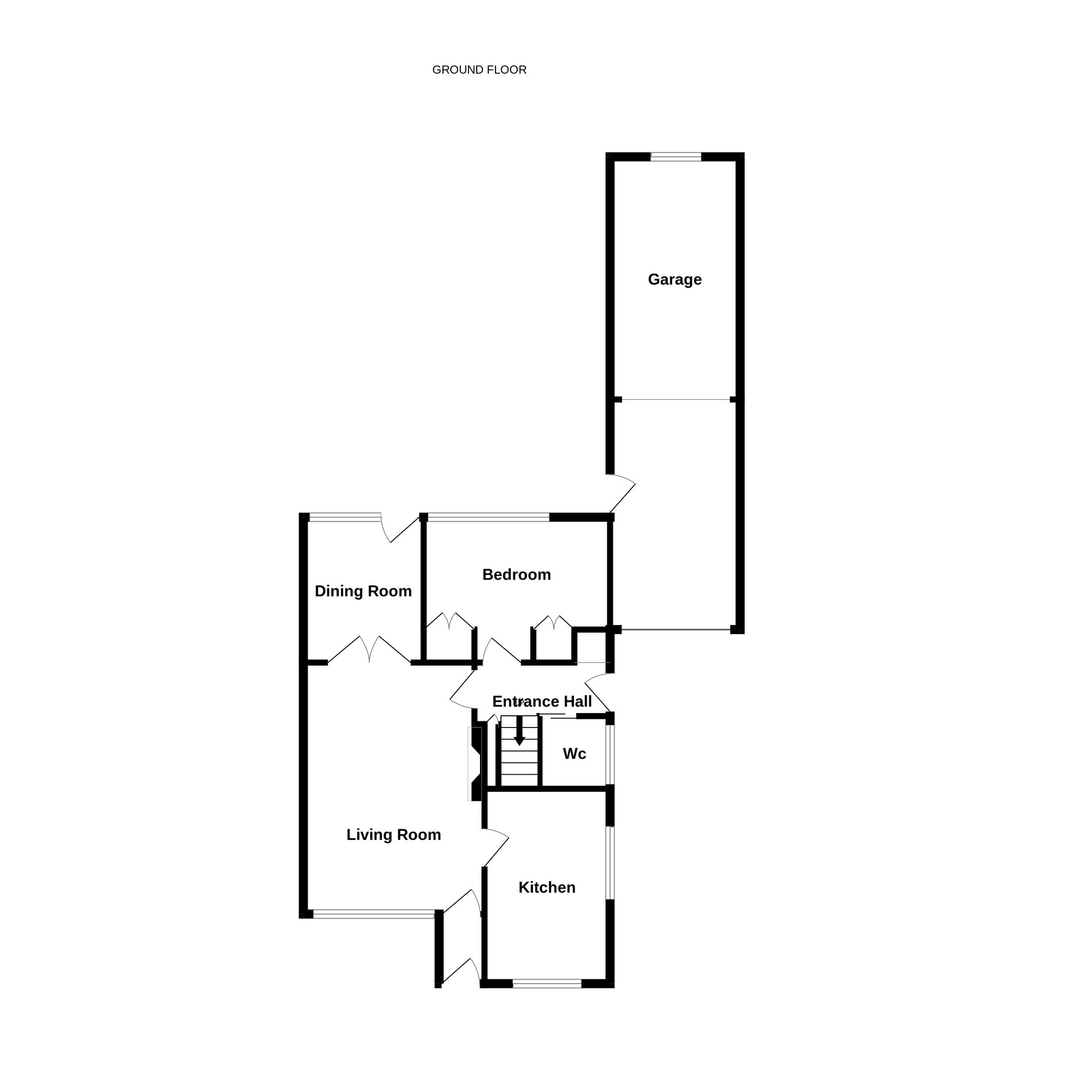
Maintained in good condition throughout and offered with vacant possession and no onward chain, the accommodation comprises in further detail:
GROUND FLOOR
ENTRANCE PORCH
With UPVC front entrance door. Internal door through to:
LIVING ROOM
18’03” x 11’08” With UPVC sealed unit double glazing. Central heating radiator. Gas fire set on stone hearth.
FITTED KITCHEN
12’05” x 8’ Well appointed with a range of wood fronted wall and base units including granite effect worktop surface and matching upstands. Stainless steel sink and drainer unit. Electric cooker point. Dual aspect UPVC sealed unit double glazing.
DINING ROOM
9’08” x 7’11” With UPVC sealed unit double glazing. UPVC sealed unit double glazed rear door leading to enclosed level rear garden. Central heating radiator.
SIDE ENTRANCE HALL
With composite entrance door. Plumbing for an automatic washing machine. Stairs leading to first floor landing. Wall mounted gas boiler. Built in cloaks cupboard.
DOWNSTAIRS W/C
Well-appointed two-piece white suite comprising low suite w/c and hand wash basin. UPVC sealed unit double glazing.
DOWNSTAIRS BEDROOM
12’01” x 7’01” With UPVC sealed unit double glazing overlooking the rear garden. Range of built in wardrobes. Central heating radiator.
FIRST FLOOR
LANDING
with large built in storage cupboard. Central heating radiator.
BEDROOM TWO
14’04” x 7’08” With UPVC sealed unit double glazing. Range of built in wardrobes. Central heating radiator.
BEDROOM THREE
16’09” x 6’01” With UPVC sealed unit double glazing. Central heating radiator. Built in wardrobe.
BATHROOM
Well-appointed three-piece white suite comprising low suite w/c, pedestal hand wash basin and fitted bath including electric shower over. UPVC sealed unit double glazing. Central heating radiator. Built in airing cupboard with central heating radiator.
OUTSIDE
To the front there is a garden area incorporating mature shrubs whilst to the side the property benefits from a generous private tarmac driveway leading to the:
TANDEM GARAGE
33’05” x 8’11” With Up/Over door. Light and power. UPVC sealed unit double glazed pedestrian door leading to rear garden. UPVC sealed unit double glazing.
To the rear the property benefits from an attractive enclosed low maintained garden, including a stone flagged patio and well stocked flower beds.
COUNCIL TAX BAND
The council tax band quoted for this property on the Gov.UK website is Band: D
TENURE
The tenure for this property is Freehold.
SERVICES All mains’ services are installed.
Please note we have not been able to test the equipment or installations in this property and recommend that prospective purchasers arrange for a qualified person to check any appliances before entering into any commitment.
VIEWING Strictly by arrangement with HARRISON BOOTHMAN. All potential viewers are advised to read a copy of our PRIVACY POLICY which can be found on our website. Alternatively a written copy is available on request.
Tel: Skipton 799993
Any floor plans are provided for informational and illustrative purposes only. Although we endeavour to provide truthful representation, we do not in any way warrant the accuracy of the floor plan information and the floor plan layout and measurements may contain errors and omissions. We are not liable for and do not accept any liability relating to any loss or damage suffered as a direct or indirect result of use of any information on the floor plan. The extent of the property and its boundaries are subject to verification by inspection of the title deeds.
These particulars were prepared from observation together with information supplied by the Vendor. We have not carried out a detailed professional survey.
Ref: AJT141025
If you are thinking of selling your property HARRISON BOOTHMAN will be pleased to provide a FREE VALUATION for sale purposes.



