Ask a Question
Request a Viewing
Arrange a Free Valuation
Sign Up for Alerts
4 Airebank Terrace, Gargrave, Skipton, North Yorkshire, BD23 3RU
Airebank Terrace, Gargrave, Skipton, North Yorkshire, BD23 3RU
- Ref: HBO250808
- Availability: For Sale
- Bedrooms: 2
- Bathrooms: 1
- Reception Rooms: 2
- Council Tax Band: C
- Tenure: Freehold
-
Make Enquiry
Make Enquiry
Please complete the form below and a member of staff will be in touch shortly.
- Floorplan 1
- Floorplan 2
- Floorplan 3
- View EPC
- <img src="/wp-content/plugins/propertyhive-shortlist/images/grey-heart.png" /><span class="favourites-text">ADD TO FAVOURITES</span>
Property Summary
Full Details
This outstanding garden fronted two double bedroomed stone terraced cottage provides attractively improved, superbly appointed and beautifully presented accommodation enjoying a delightful level location commanding long distance open views across the valley at the front beyond a field towards countryside and the hills whilst backing onto the banks of the River Aire with fine southerly aspects towards countryside at the rear.
Including gas central heating, UPVC sealed unit double glazing, quality fittings and fixtures, this very appealing property is pleasantly situated only minutes walking distance away from Gargrave village centre amenities and services nearby. Strongly recommended for internal inspection, the property provides very briefly:
An entrance vestibule. An entrance hall. Sitting room with a cast iron wood burning stove. Living / Dining room and a refitted kitchen which is well equipped with cream fronted units whilst on the first floor are two double bedrooms (both enjoying superb long distance open views), an inner hall and a refitted bathroom which is superbly appointed with a quality contemporary white suite including a shower to the bath. There is an easily manageable enclosed front garden. To the rear is an enclosed yard including two adjoining stone out-buildings/store places. Also at the rear is a level lawned garden including a flowerbed, bushes, a timber decking and a stone rear boundary wall - whilst backing onto the banks of the River Aire enjoying superb long distance open southerly views towards fields and countryside.
Surrounded by beautiful open countryside adjacent to the River Aire and the Leeds/Liverpool canal, the very popular village of Gargrave is served by extensive local amenities including everyday shops, a sub post office, a Co-op, a chemist, a doctors surgery, a primary school, a Church, a village hall, community events, public houses and restaurants, sports clubs, a bus service and a railway station offering a regular service to Skipton, Keighley, Bradford and Leeds together with the scenic Settle to Carlisle line.
The historic market town of Skipton known as the 'Gateway to the Dales' is only circa four miles away providing extensive shops, amenities, services and recreational facilities together with excellent secondary schooling.
The business centres of West Yorkshire and East Lancashire are within comfortable daily commuting distance.
With much to commend it, the spacious and versatile property comprises in further detail below:
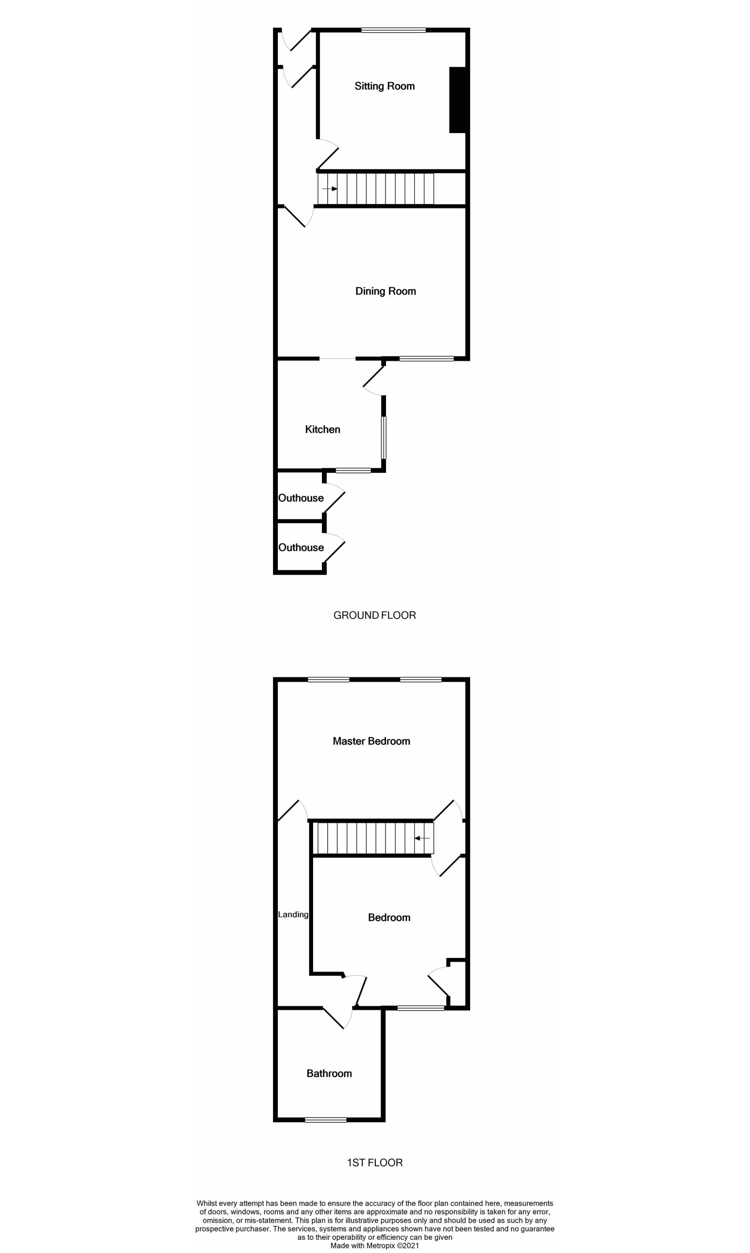
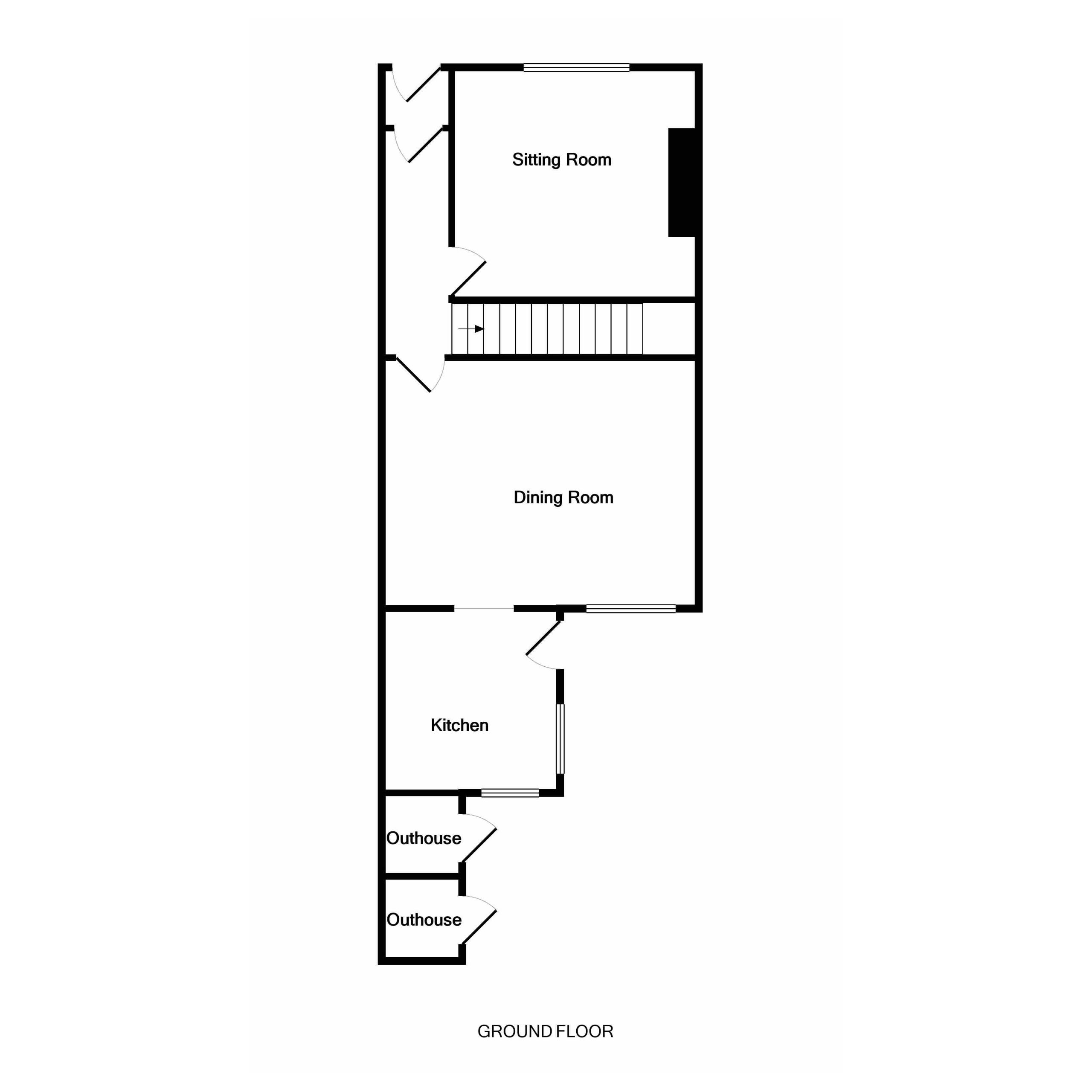
GROUND FLOOR
ENTRANCE VESTIBULE
With a substantial front entrance door. Mat well. Predominantly glazed inner door through to the:
ENTRANCE HALL
With a central heating radiator, dado rails, ceiling cornices and a staircase to the first floor.
SITTING ROOM
12'1" x 11'6" UPVC sealed unit double glazing and a central heating radiator. Fireplace recess with a substantial oak lintel and an Esse cast iron wood burning stove on a stone flagged hearth. Built-in base cupboards to both side alcoves and providing display surfaces. Ceiling cornices.
LIVING / DINING ROOM
16' x 12'4" UPVC sealed unit double glazing providing long distance open views at the rear. Double central heating radiator. Fitted flame effect mains gas fireplace. Dado rails. Wall light point. Deep built-in store place under the stairs with fitted shelves, a cloaks rail and an electric light.
KITCHEN
9' x 9' Well equipped with a quality range of cream fronted base and wall units providing cupboards, drawers and oak block style worktop surfaces having complementary tiled surrounds. Blanco composite sink and drainer with a pillar tap. Belling oven with four ring gas hob. Kenwood dishwasher. Double central heating radiator. UPVC sealed unit double glazing to two sides. Long distance open views at the rear. Fitted ceiling spotlights and down-lights beneath the wall units. Floor level plinth lighting. Open store/appliance recess beneath the stairs. Substantial external door to the rear yard and attractive rear garden.
FIRST FLOOR
LANDING
BEDROOM ONE
16'2" x 11'6" UPVC sealed unit double glazing providing superb long distance panoramic open views at the front beyond a field, across the valley towards countryside, Sharphaw and Roughaw. Double central heating radiator. Quality range of wardrobes. Fitted carpets.
BEDROOM TWO
12'6" (maximum) x 11'8" UPVC sealed unit double glazing providing superb long distance open views at the rear beyond the River Aire towards fields and countryside. Double central heating radiator. Cast iron period fireplace. Built-in floor to ceiling cupboard including an Ideal gas combination central heating boiler.
INNER HALL
With dado rails and recessed low voltage ceiling spotlights. Loft hatch access with pull down ladder.
HOUSE BATHROOM
Superbly appointed with a quality contemporary three piece white suite comprising a shower bath having a screen, mermaid wall panelling and a shower to the mixer tap together with a low suite WC and a pedestal wash basin having a splash-back panel and a pillar tap. UPVC sealed unit double glazing incorporating privacy glass. Central heating radiator.
OUTSIDE
There is an easily manageable enclosed front garden including lawn, flowerbeds and railed stone boundary walls.
Enclosed concreted rear yard including an outside tap and:
TWO ADJOINING STONE OUT-BUILDINGS/STORE PLACES
Also at the rear is a level lawned garden including flowerbeds, bushes, timber decking area and a stone rear boundary wall - whilst backing onto the banks of the River Aire enjoying superb long distance open southerly views towards fields and countryside. The rear garden provides a delightful sitting out area.
COUNCIL TAX BAND
The council tax band quoted for this property on the Gov.UK website is Band: C
TENURE
The tenure for this property is Freehold.
SERVICES All mains services are installed.
Please note we have not been able to test the equipment or installations in this property and recommend that prospective purchasers arrange for a qualified person to check any appliances before entering into any commitment.
VIEWING Strictly by arrangement with HARRISON BOOTHMAN. All potential viewers are advised to read a copy of our PRIVACY POLICY which can be found on our website. Alternatively, a written copy is available on request.
Tel: Skipton 799993
Any floor plans are provided for informational and illustrative purposes only. Although we endeavour to provide truthful representation, we do not in any way warrant the accuracy of the floor plan information and the floor plan layout and measurements may contain errors and omissions. We are not liable for and do not accept any liability relating to any loss or damage suffered as a direct or indirect result of use of any information on the floor plan. The extent of the property and its boundaries are subject to verification by inspection of the title deeds.
These particulars were prepared from observation together with information supplied by the Vendor. We have not carried out a detailed professional survey.
Ref: MGLEDHILL14126
If you are thinking of selling your property HARRISON BOOTHMAN will be pleased to provide a FREE VALUATION for sale purposes.


































