Ask a Question
Request a Viewing
Arrange a Free Valuation
Sign Up for Alerts
48 Raikeswood Road, Skipton, North Yorkshire, BD23 1NB
Raikeswood Road, Skipton, North Yorkshire, BD23 1NB
- Ref: HBO250593
- Availability: For Sale
- Bedrooms: 3
- Bathrooms: 1
- Reception Rooms: 2
- Council Tax Band: E
- Tenure: Freehold
-
Make Enquiry
Make Enquiry
Please complete the form below and a member of staff will be in touch shortly.
- Cellar
- Ground Floor
- First Floor
- View EPC
- <img src="/wp-content/plugins/propertyhive-shortlist/images/grey-heart.png" /><span class="favourites-text">ADD TO FAVOURITES</span>
Property Summary
Full Details
This substantial and spacious traditional three bedroomed semi-detached house is superbly situated in the prestigious 'Raikes' area of Skipton only circa two thirds of a mile away from town centre amenities whilst excellent primary and secondary schooling are also nearby.
Standing in a well proportioned established garden with a private driveway and a detached double garage, this family sized home includes gas central heating together with UPVC sealed unit double glazing and now offers significant potential for further modernisation.
Enjoying a slightly elevated position with fine views, this very appealing property certainly provides an excellent opportunity and is recommended for inspection, comprising briefly:
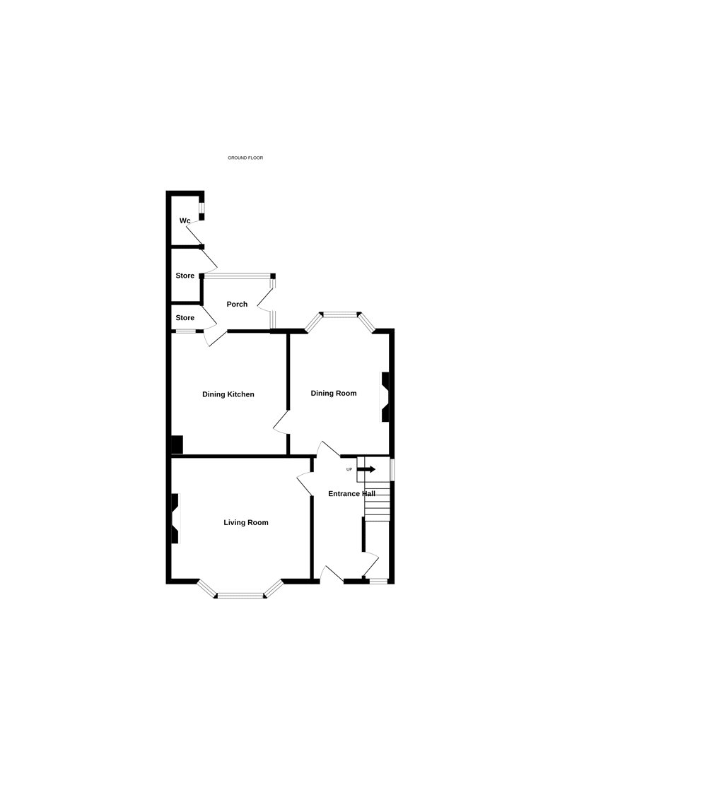
An entrance hall, a cloak room/store, a living room and a dining room with a cast iron period fireplace. There is also a dining kitchen and a rear sun porch with a store place. On the first floor are three generous bedrooms and a bathroom. To the front of the house is an established garden. A private tarmac driveway extends along the side of the house, widening at the rear to give access to a detached double garage. There is a separate basement room/workshop with external access. The attractive rear garden includes lawn, flowerbeds, bushes, small trees and a greenhouse. An adjoining out-building incorporates a store place and a gardener's WC.
The increasingly popular market town of Skipton has won many accolades in recent years, being independently judged to be one of the best areas to live in the UK via multiple media sources. Catering to residents of all ages, the town offers the perfect combination of excellent schooling, easy access to countryside and an extensive choice of leisure, shopping and recreational facilities. The town is intersected by the scenic Leeds/Liverpool canal and is well known for its Medieval Church and Castle together with a bustling High Street featuring an outdoor market on the cobbled 'setts' four days a week. The town offers an excellent mix of independent shops, pubs and cafés in addition to having well known branded stores and a choice of fashionable bars and restaurants. There are excellent public transport links, including a railway station providing regular daily services to Leeds and Bradford. The town enjoys an annual programme of community events and festivals, attracting an ever increasing degree of tourism. In addition, the beautiful Yorkshire Dales National Park is only a short drive away to the north, offering some of the finest countryside and scenery in the UK.
The business centres of West Yorkshire and East Lancashire are within comfortable daily commuting distance.
With much to commend it, the property comprises in further detail:
GROUND FLOOR
RECEPTION HALL
With a substantial composite and sealed unit double glazed front entrance door. Double central heating radiator. Partial wall panelling. UPVC sealed unit double glazing. Picture rails. Staircase to the first floor with an oak spindled balustrade.
CLOAK ROOM/STORE
With UPVC sealed unit double glazing, a cloaks rail and coat hooks.
LIVING ROOM
16'2" (into bay) x 15' With a stone mullioned UPVC sealed unit double glazed splay bay window. Three double central heating radiators. Carved pine surround to a fireplace with a tiled interior, a matching hearth and a fitted coal style gas fire. Wall light points and display shelves.
DINING ROOM
15'9" (into bay) x 11' With a stone mullioned UPVC sealed unit double glazed splay bay window. Three double central heating radiators. Cast iron period fireplace with an open grate and a polished black granite hearth.
FITTED DINING KITCHEN
13' x 12' With a range of base and wall units providing cupboards, drawers and worktop surfaces having tiled surrounds. Stainless steel sink and drainer. Electric cooker point. Plumbing for an automatic washing machine. Central heating radiator. Extractor fan.
REAR SUN PORCH
8'2" x 6'4" With UPVC sealed unit double glazing and a matching external door. Long distance views. Tiled flooring. INTEGRAL STORE PLACE - With an electric light and an electricity socket.
FIRST FLOOR
LANDING AND HALF LANDING
With stone mullioned UPVC sealed unit double glazing to the front elevation. UPVC sealed unit double glazing also to the side elevation. Oak spindled balustrade.
BEDROOM ONE
13'10" x 13'7" (both maximum) With stone mullioned UPVC sealed unit double glazing. Central heating radiator. Fitted wardrobes with cupboards above.
BEDROOM TWO
15'5" (into bay) x 10'6" With a stone mullioned UPVC sealed unit double glazed splay bay window. Window seat. Fine long distance views at the rear towards Park Hill, beyond gardens and across the valley towards the hills. Fitted wardrobe and cupboards.
BEDROOM THREE
13' x 6'5" (plus recess) With UPVC sealed unit double glazing providing fine long distance views as described above. Central heating radiator.
BATHROOM
With a three piece white suite comprising a panelled bath having a screen and a thermostatic shower together with a pedestal wash basin and a low suite WC. Contrasting partial wall tiling. UPVC sealed unit double glazing. Double central heating radiator. Extractor fan. Built-in floor to ceiling cupboards.
OUTSIDE
There is an established front garden with lawn, flowerbeds, bushes, a small tree and a stone front boundary wall.
A PRIVATE TARMAC DRIVEWAY:
Extends along the side of the house widening at the rear to give access to a:
DETACHED DOUBLE GARAGE
17'9" x 16'6" - With twin up/over doors, a pedestrian side access door, a window, electric lights and electricity sockets.
The attractive rear garden includes lawn, flowerbeds, bushes, a small tree and a greenhouse.
ADJOINING OUT-BUILDING/STORE PLACE AND A GARDENER'S WC
SEPARATE BASEMENT ROOM/WORKSHOP
8'5" x 8'2" plus 10'8" x 6' With a UPVC and sealed unit double glazed external door, electric lights, electricity sockets, a hot water cylinder, an Ideal gas central heating boiler and a glazed sink including hot and cold water.
COUNCIL TAX BAND
The council tax band quoted for this property on the Gov.UK website is Band: E
TENURE
The tenure for this property is Freehold.
SERVICES All mains services are installed.
Please note we have not been able to test the equipment or installations in this property and recommend that prospective purchasers arrange for a qualified person to check any appliances before entering into any commitment.
VIEWING Strictly by arrangement with HARRISON BOOTHMAN. All potential viewers are advised to read a copy of our PRIVACY POLICY which can be found on our website. Alternatively, a written copy is available on request.
Tel: Skipton 799993
Any floor plans are provided for informational and illustrative purposes only. Although we endeavour to provide truthful representation, we do not in any way warrant the accuracy of the floor plan information and the floor plan layout and measurements may contain errors and omissions. We are not liable for and do not accept any liability relating to any loss or damage suffered as a direct or indirect result of use of any information on the floor plan. The extent of the property and its boundaries are subject to verification by inspection of the title deeds.
These particulars were prepared from observation together with information supplied by the Vendor. We have not carried out a detailed professional survey.
Ref: RAH040226
If you are thinking of selling your property HARRISON BOOTHMAN will be pleased to provide a FREE VALUATION for sale purposes.




































