Ask a Question
Request a Viewing
Arrange a Free Valuation
Sign Up for Alerts
5 Belgrave Street, Skipton, BD23 1QB
Belgrave Street, Skipton, BD23 1QB
- Ref: HBO250735
- Availability: For Sale
- Bedrooms: 2
- Bathrooms: 1
- Reception Rooms: 1
- Council Tax Band: B
- Tenure: Freehold
-
Make Enquiry
Make Enquiry
Please complete the form below and a member of staff will be in touch shortly.
- Floorplan
- Floorplan
- View Brochure
- View EPC
- <img src="/wp-content/plugins/propertyhive-shortlist/images/grey-heart.png" /><span class="favourites-text">ADD TO FAVOURITES</span>
Property Summary
Full Details
An exceptional opportunity to purchase this spacious and well-presented traditional garden fronted stone terraced house which has been used as a successful long term let. This family home is very pleasantly situated in a popular residential area just off Gargrave Road only a few minutes walking distance away from Skipton town centre amenities whilst Aireville Park, the Leeds/Liverpool canal, excellent primary and secondary schools are also nearby.
Planned on two floors including gas central heating and sealed unit double glazing, this very appealing property is strongly recommended for inspection, comprising briefly:
An entrance hall, a living room with a bay window and a feature fireplace with a coal effect electric fire, a large dining kitchen with ample space to add further wall and base units and a utility room whilst to the first floor there are two good sized bedrooms and a house bathroom fitted with a white three piece suite. To the front of the property there is a small garden frontage whilst to the rear there is a large enclosed stone paved patio.
The incredibly popular market town of Skipton has won many accolades in recent years, being independently judged to be one of the best areas to live in the UK via multiple media sources. Catering to residents of all ages, the town offers the perfect combination of excellent schooling, easy access to countryside and an extensive choice of leisure, shopping and recreational facilities.
The town is intersected by the scenic Leeds/Liverpool canal and is well known for its Medieval Castle and Church together with a bustling High Street featuring an outdoor market on the cobbled 'setts' three days a week. The town offers an excellent mix of independent shops, pubs and cafes in addition to having well known branded stores and a choice of fashionable bars and restaurants. There are excellent public transport links including a railway station providing regular daily services to Leeds and Bradford. The town enjoys an annual programme of community events and festivals, attracting an ever increasing degree of tourism. In addition, the beautiful Yorkshire Dales National Park is only a short drive away to the North offering some of the finest countryside and scenery in the United Kingdom.
The business centres of West Yorkshire and East Lancashire are within comfortable daily commuting distance.
With much to commend it this highly desirable property comprises in further detail:
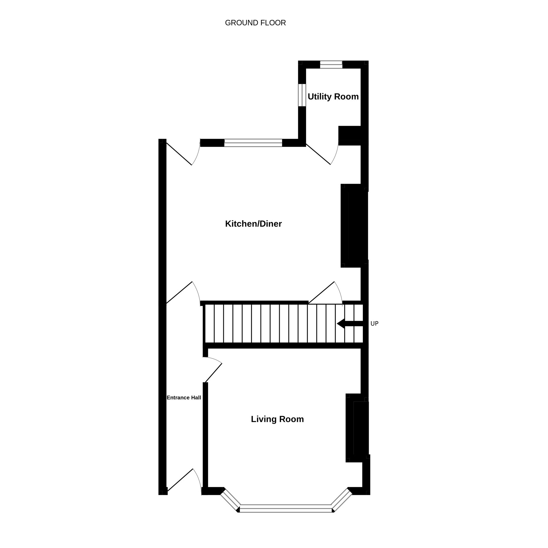
GROUND FLOOR
ENTRANCE HALLWAY
Composite front entrance door. Central heating radiator. Feature archway and dado rail. Oak effect flooring.
LIVING ROOM
12'6" (into bay) x 11'10" with a bay window with sealed unit UPVC double glazed windows. Oak effect flooring. Alcove base unit and fitted shelving. Picture rail. Dado rail. Ceiling rose. Central heating radiator. Feature fireplace with a coal effect electric fire.
DINING KITCHEN
15'6" x 12' with oak effect flooring. Central heating radiator. Sealed unit UPVC rear entrance door and matching window with plantation shutters. Fitted base units with a contrasting pine effect worktop. Beko freestanding oven with a four ring electric hob. Useful understair storage cupboard with fitted shelving.
UTILITY ROOM
4'6" x 4'2" with a fitted base unit with pine effect worktop and tiled surround. Ceramic one and a half bowl sink and drainer with a brass hot and cold mixer tap. Wall mounted Glowworm gas fired combination boiler.
FIRST FLOOR
LANDING
Spindled balustrade. Loft access.
MASTER BEDROOM
14'4" x 11'7" (maximum) with a sealed unit UPVC double glazed window. Fitted wardrobing. Central heating radiator. Feature decorative fireplace.
BEDROOM TWO
12'2" x 7'8" with a sealed unit UPVC double glazed window. Fitted wardrobing. Central heating radiator. Feature decorative fireplace.
HOUSE BATHROOM
Pedestal wash basin. Panelled bath with a matte black dual thermostatic and rainfall shower with tiled surround. Low suite w/c. Sealed unit UPVC double glazed window. Extractor fan. Central heating radiator. Storage cupboard.
OUTSIDE
To the front there is a small enclosed and gated paved yard. On street parking is readily available. To the rear there is an enclosed and private stone paved patio with a covered seating area. Water tap.
TENURE
The tenure for this property is Freehold.
COUNCIL TAX BAND
The council tax band quoted for this property on the Gov.UK website is Band: B
SERVICES All mains services are installed.
Please note we have not been able to test the equipment or installations in this property and recommend that prospective purchasers arrange for a qualified person to check any appliances before entering into any commitment.
VIEWING Strictly by arrangement with HARRISON BOOTHMAN. All potential viewers are advised to read a copy of our PRIVACY POLICY which can be found on our website. Alternatively a written copy is available on request.
Tel: Skipton 799993
Any floor plans are provided for informational and illustrative purposes only. Although we endeavour to provide truthful representation, we do not in any way warrant the accuracy of the floor plan information and the floor plan layout and measurements may contain errors and omissions. We are not liable for and do not accept any liability relating to any loss or damage suffered as a direct or indirect result of use of any information on the floor plan. The extent of the property and its boundaries are subject to verification by inspection of the title deeds.
These particulars were prepared from observation together with information supplied by the Vendor. We have not carried out a detailed professional survey.
Ref: JCT05102025
If you are thinking of selling your property HARRISON BOOTHMAN will be pleased to provide a FREE VALUATION for sale purposes.
These particulars do not constitute an offer or contract of sale.
Any prospective purchaser should satisfy themselves by inspection of the property.

























