Plot 3, Adams Way, Skipton, BD23 6AA
£450,000Sold Subject To Contract
Please complete the form below and a member of staff will be in touch shortly.
*60% OF SITE NOW SOLD - ENQUIRE NOW FOR YOUR NEW HOME*
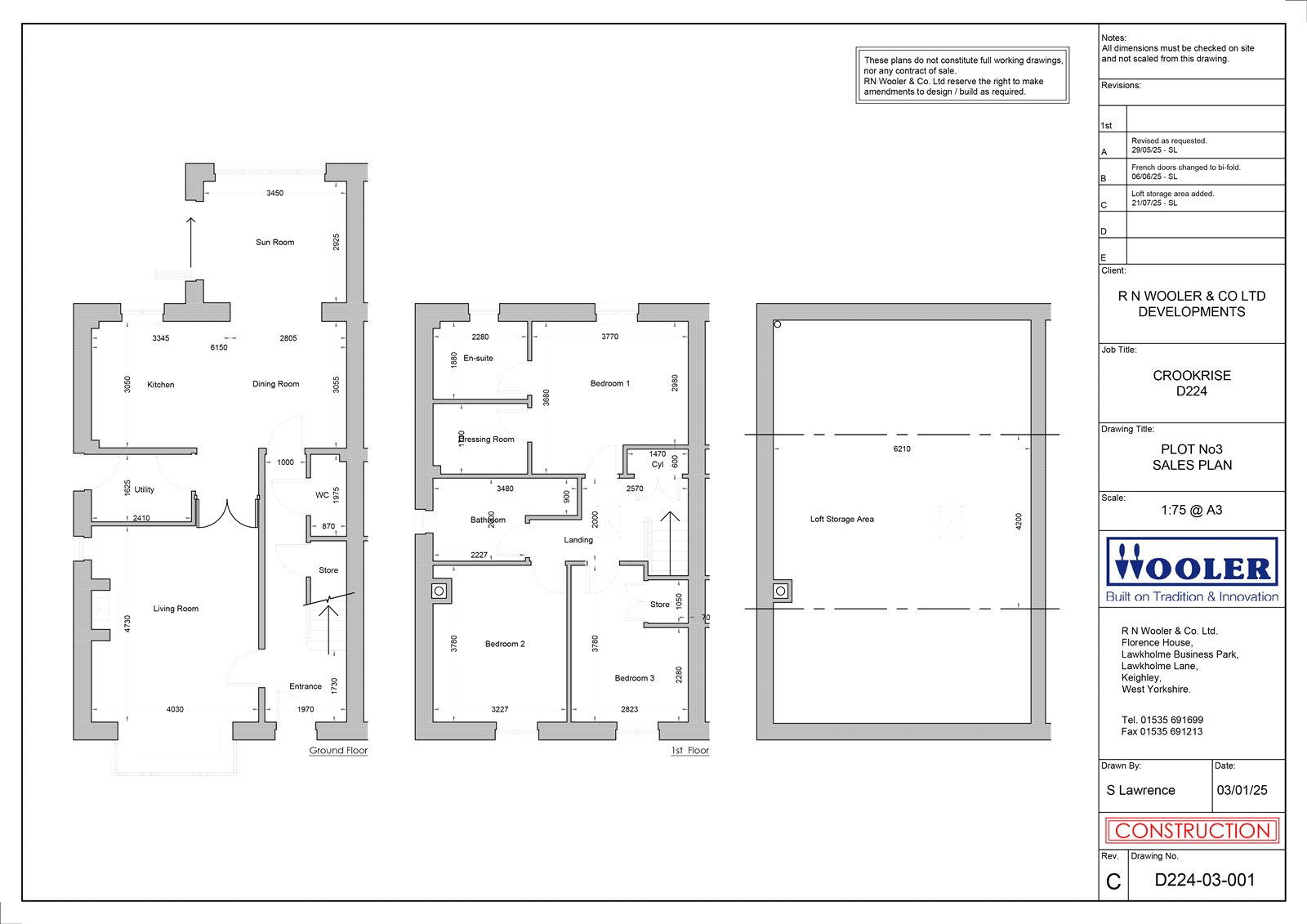
Plot 3 comprises a particularly spacious three double bedroom stone built semi-detached home, with a west facing rear garden, two luxury bathrooms, living room with wood burning stove, fully fitted utility room, a spacious dining kitchen with integrated appliances and a magnificent sun room. Please note, the photos shown are from previous developments, but Phase 1 is expected to be available for completion before the end of 2025.
A brand new development of luxurious natural stone built homes situated in the prestigious 'Harrogate Road' area of Skipton. Expertly crafted by the Multi Award-Winning local construction company R. N. Wooler & Co. Ltd, renowned for their exceptional build quality and meticulous attention to detail.
Offering an excellent variety of spacious and sophisticated two, three, four and five bedroom contemporary homes, all properties on this imaginatively designed development will be constructed to an unrivalled new build standard throughout. Your R.N. Wooler & Co. Ltd home will incorporate handsome exterior stonework, in-house craftsman joinery, bespoke interior customer choices and first-class fixtures and fittings.
All plots will include briefly:
TEN YEAR NHBC WARRANTY
ALL MAINS SERVICES
PRIVATE DRIVEWAY PARKING
SOLAR PV PANELS
ELECTRIC CAR CHARGING POINT
LANDSCAPED GARDENS WITH TURFING AND NATURAL STONE FLAGS
WOOD BURNING STOVE TO THE LIVING ROOM
EFFICIENT MAINS GAS CENTRAL HEATING WITH ZONED UNDERFLOOR HEATING TO THE GROUND FLOOR
HIGH END HANDMADE FITTED KITCHEN WITH QUARTZ/GRANITE WORKTOPS AND INTEGRATED APPLIANCES
LUXURIOUS BATHROOMS WITH QUALITY SUITE AND TILING.
SECURITY ALARM SYSTEM
HIGH END FLOORING INCLUDED THROUGHOUT
OAK VENEER INTERNAL DOORS WITH COMPLEMENTARY FITTINGS
(A detailed specification is available further below)
Each home will benefit from a modern, sustainable design incorporating a remarkably high level of thermal insulation together with solar PV panels ensuring reduced ongoing energy requirements and associated running costs whilst also minimising any environmental impact.
Featuring R.N. Wooler & Co. Ltd's characteristic attention to detail, these impressive modern homes will be appointed to an exceptionally high standard throughout, incorporating stylish and contemporary modern interiors equipped with elegant kitchens and bathrooms, cast iron wood burning stoves to the living rooms and luxurious 'zoned' underfloor gas central heating to the ground floor. High-end flooring will also be included throughout all open market homes.
These desirable new homes are situated close to the beautiful Skipton Woods, an ancient area of woodland extending behind the spectacular medieval Skipton Castle following the natural valley of Eller Beck offering a wonderful habitat for birds and other wildlife whilst leading past the historic Springs Canal and directly down into the town centre itself. The high street with its wide range of shops and other amenities, including a regular outdoor market, is also only a few minutes walking distance away.
The increasingly popular market town of Skipton has won many accolades in recent years, being independently judged to be one of the best areas to live in the UK via multiple media sources. Catering to residents of all ages, the town offers the perfect combination of excellent schooling, easy access to countryside and an extensive choice of leisure, shopping and recreational facilities. The town is intersected by the scenic Leeds/Liverpool canal and is well known for its Medieval Church and Castle together with a bustling High Street featuring an outdoor market on the cobbled 'setts' four days a week. The town offers an excellent mix of independent shops, pubs and cafés in addition to having well known branded stores and a choice of fashionable bars and restaurants. There are excellent public transport links, including a railway station providing regular daily services to Leeds and Bradford. The town enjoys an annual programme of community events and festivals, attracting an ever increasing degree of tourism. In addition, the beautiful Yorkshire Dales National Park is only a short drive away to the north, offering some of the finest countryside and scenery in the UK.
THE DEVELOPER
R N Wooler & Co Limited have earned a reputation for meticulous attention to detail, expertly utilising high quality materials to create sophisticated modern homes which are constructed to the highest possible standards. This well established and extremely successful Multi-Award Winning local family firm has been responsible for many exciting projects, benefiting from a long serving workforce of directly employed craftsman, proud to be building the high calibre homes of the future.
SCHEDULE OF AVAILABILITY
PHASE ONE – FULLY RESERVED
Plot 1 - £475,000 - Three Bedroom Semi-Detached - (RESERVED)
Plot 2 - £450,000 - Three Bedroom Semi-Detached - (AVAILABLE)
Plot 3 - £450,000 - Three Bedroom Semi-Detached - (RESERVED)
Plot 4 - £499,950 - Three Bedroom Semi-Detached – Single Garage (RESERVED)
Plot 5 - £785,000 - Four Bedroom Detached - Double Garage (RESERVED)
PHASE TWO - AVAILABLE NOW FOR RESERVATION
Plot 8 - Four Bedroom Semi-Detached - Single Garage (RESERVED)
Plot 9 - £549,950 - Four Bedroom Semi-Detached - Single Garage (RESERVED)
Plot 10 - £795,000 - Four Bedroom Detached - Single Garage (AVAILABLE)
Plot 11 - Three Bedroom Semi-Detached - Single Garage (RESERVED)
Plot 12 - £485,000 - Three Bedroom Semi-Detached (AVAILABLE)
Plot 16 - Two Bedroom Semi-Detached (RESERVED)
Plot 23 - £525,000 - Three Bedroom Semi-Detached - Single Garage (AVAILABLE)
Plot 24 - £525,000 - Three Bedroom Semi-Detached - Single Garage (RESERVED)
Plot 25 - Four Bedroom Detached - Single Garage (RESERVED)
Plot 26 - Three Bedroom Semi-Detached - Single Garage (RESERVED)
Plot 27 - Three Bedroom Semi-Detached - Single Garage (RESERVED)
PHASE THREE – COMING SOON - A CHOICE OF 3, 4 & 5 BEDROOM HOMES
RESERVATION
To make a reservation, please contact the Selling Agents. A reservation fee of £1,000 is required to secure the property. Please make cheques payable to "R N Wooler & Co. Limited". Payment can also be made by BACS (account information can be obtained from the selling agents). All reservations are subject to a reservation agreement and purchasers must be in a position to exchange contracts within nine weeks of this agreement. The reservation fee is deducted from the balance due on completion. If, after placing the reservation fee, the prospective buyer does not proceed with the purchase within the prescribed timescale, the developer reserves the right to re-offer the property and retain a fair proportion of the reservation fee towards any 'out of pocket' expenses. Upon making a reservation, the prospective purchaser will be required to provide proof of ID and proof of funds (including a mortgage agreement in principle where applicable). This information must be provided within 7 days of the reservation agreement. In addition, we strongly recommend that all prospective purchasers appoint a Solicitor or Professional Legal Advisor to carry out the legal formalities and represent their interests relating to the purchase. The name and contact details of such should also be provided to the selling agents within 7 days of the reservation agreement. If the necessary information above is not provided to the selling agents within the 7 day time frame, the developer reserves the right to withdraw from the reservation and re-offer the property for sale. In all other respects, the developer reserves the right to withdraw from the reservation agreement at any stage, subject to a full refund of the reservation fee. In any event, any supplementary costs incurred by the purchaser associated with the proposed purchase are entirely at their own risk and will not be reimbursed by the developer under any circumstances. Please contact the selling agents to discuss any potential reservation proposal in detail.
GENERAL
Any plans, descriptions and measurements are subject to change and do not form part of any contract. The developer reserves the right to make changes to the plans and specification at any stage. Potential buyers are advised to ensure that the finished dimensions, boundaries, specification and layouts meet their own expectations and requirements prior to exchange of contracts. Some photos shown may be of the Show Home or from previous developments and are for illustrative purposes only. The site plan shown is provisional and is subject to change. Any fitted wardrobes shown on the plans or in the photographs are for illustrative purposes only and are an optional extra.
Any floor plans are provided for informational and illustrative purposes only. Although we endeavour to provide truthful representation, we do not in any way warrant the accuracy of a floor plan information and the floor plan layout and measurements may contain errors and omissions. We are not liable for and do not accept any liability relating to any loss or damage suffered as a direct or indirect result of use of any information on the floor plan.
These particulars were prepared from observation together with information supplied by the vendor. We have not carried out a detailed professional survey.
* AFFORDABLE HOMES
A small number of homes on the development are allocated for 'Affordable Housing'. Harrison Boothman have not been appointed to market the affordable homes and are therefore unable to provide any further assistance in this regard. Any parties potentially interested in purchasing an affordable home are advised to contact North Yorkshire County Council in the first instance.
TENURE
Each property will be Freehold. Private roads off the adopted highway and certain areas of open green space within the development will be communally owned and run by a Management Company. Each home will make an annual contribution towards this.
HEALTH AND SAFETY
Any site visits are strictly by appointment only. Interested parties must not, under any circumstances, attempt to venture onto the building site unaccompanied. Building sites are dangerous and contain numerous safety hazards including moving machinery and uneven surfaces. Any visitors to the site will be required to observe important health and safety notices and must wear suitable footwear together with Personal Protective Equipment (PPE). The PPE will be provided by the developer upon arrival and should be worn until leaving the site. Young children and pets will not be permitted on site. Agreed site visits will be accompanied by a representative on behalf of the developer. Whilst conducting site visits, it is essential for their own safety that visitors must follow all instructions provided by the appointed representative and must only access areas of the site permitted by the representative on behalf of the developer. During site visits, visitors are advised to be alert for any potential hazards and take great care at all times. Visitors must remain together in a group with the representative and must not leave this group at any time.
WARRANTY AND BUILDING STANDARDS
Each property will be constructed in accordance with relevant building regulations, the planning consents and under the supervision of the NHBC. A 10 year NHBC warranty will be provided on completion. Further written information on the warranty is available on request and will also be provided at the point of any reservation.
CONTACT AND COMPLAINTS
Prior to reservation, buyers are advised to direct any general queries or complaints to the Selling Agents either by telephone or email. Once a reservation has been made, any legal questions must be directed to the purchaser's appointed legal advisers; whilst any queries regarding the general fit-out of the property should be directed to the developer directly either by telephone or email. Specific contact details for the developer will be provided at the point of reservation. Upon completion of the sale, any queries or complaints should be made directly to the developer or to NHBC where required.
FITTING OUT
Where agreed your home will be fitted out as per the specification provided to you. The time this takes depends on availability of labour and materials together with other factors that can impact on the speed at which we can work such as the weather. Occasionally the developers and purchasers agree to alterations to that specification or additional items. These are often referred to as 'extras'. In those circumstances where 'extras' are agreed we reserve the right to require that the purchaser pays an additional sum for the items to be ordered and the work to be done. Please note where 'extras' are agreed and the additional sum is paid it is paid on the following basis:
1) It will be used for the ordering/construction and acquisition of materials and items and subsequent fitting of the agreed additional items.
2) In the event that you do not proceed with the purchase only that part of the monies paid that has not been utilised in respect of the 'extras' will be refunded.
Consequently if you do decide to proceed on this basis the sums you pay may not be refunded. If you are unclear as to the meaning of the above please seek independent legal advice.
SERVICES All mains services will be installed.
Please note we have not been able to test the equipment or installations in this property and recommend that prospective purchasers arrange for a qualified person to check any appliances before entering into any commitment.
VIEWING Strictly by arrangement with HARRISON BOOTHMAN Tel: Skipton 799993
If you are thinking of selling your property HARRISON BOOTHMAN will be pleased to provide a FREE VALUATION for sale purposes.
SPECIFICATION
ALL PLOTS except 6,7,13,14,15,28,29,30 & 31
ADAMS WAY, SKIPTON
BD23 6AA
During R N Wooler & Co. Ltd.’s many years of trading we have developed a diverse range of bespoke properties around Skipton, Settle, Ilkley and in the Yorkshire Dales National Park. Using traditional methods and materials, supplemented by modern innovation, examples of our recently completed developments can be seen at; Meadow Close (Bradley), Park Croft (Gargrave), High Castle and Higher Raikes (Skipton), Hawks View (Embsay) along with many more.
For further information visit our website www.rnwooler.co.uk or contact us on 01535 691699 / info@rnwooler.co.uk.
Built by our directly employed, time served craftsman, your R N Wooler home at Adams Way comes with the following as standard.
Generally
10-year NHBC build warranty.
Mains utility connections including drains, gas, water, electric and telecoms.
Heating
All plots (Excluding plot 16) will have a Worcester Boiler with pressurised cylinder.
Underfloor heating to ground floor with individually thermostatically controlled zones.
Stelrad compact panel radiators to 1st floor.
Choice of wood burning stove including stone hearth (Plot specific)
Bathrooms & Downstairs WC
High quality contemporary bathrooms featuring walk in showers with rain heads, wall hung basin vanity units with LED mirror cabinets and easy clean water saving rimless toilets.
Choice of high specification tiles to walls and floors.
Electric under tile heat mat to provide underfloor heating to bathrooms.
Dual fuel chrome towel rails to house bathroom and en-suites.
Electrical
Intruder alarm as standard with minimum 4nr PIR’s to the house.
Mains operated smoke and / or heat detectors throughout.
Ample external light fittings with PIR sensors
Mirror light / shaver points – main bathroom and en-suites.
TV point where applicable to (living room, sun room (Plot specific), kitchen diner, study, and all bedrooms).
Telephone points (1 main incoming point).
LED downlights fitted to kitchen, WC, house bathroom and en-suites.
LED under pelmet lighting in kitchen and Utility (Where applicable)
Ample chrome faced electrical switches and sockets throughout.
External electric point.
External car charging point.
SKY cabling, TV and BT point.
Doorbell system.
Solar PV system of 2.5KW to 5.0KW (Plot specific)
Kitchen
Bespoke kitchen manufactured in the R N Wooler joinery workshop with a choice of high-end specification units and granite / quartz worktops with splashback behind hob and upstands throughout.
High specification appliances as standard to include integrated dishwasher, induction hob, double multi-function oven, one and a half bowl sink with mixer tap, tall fridge freezer and extractor.
Utility (Where applicable)
Bespoke utility manufactured in the R N Wooler joinery workshop with a choice of high-end specification units and granite / quartz worktops with upstands throughout.
High specification appliances as standard to include washing machine and tumble dryer, (In Kitchen where no utility present).
Internal Specification
Contemporary timber skirting and architraves.
High specification flooring included throughout.
Internal walls Winborne White emulsion with White ceilings and gloss white woodwork.
R N Wooler & Co. Ltd. manufactured stairs with Oak balustrading and handrails.
Optional Extras: -
Including bespoke fitted wardrobes and free-standing furniture manufactured in R N Wooler’s joinery workshop, cutlery trays, additional plug sockets, USB sockets, PV battery units, upgraded stoves, additional tiling, window coverings (i.e. Velux blinds) and upgraded flooring.
The above list is not exhaustive and your Sales Representative will discuss all extras available to you at your choice’s appointment.
Door and Window Specification
Timber windows painted in ‘Agate Grey’ with double glazing and ventilation complete with chrome ironmongery.
Solid wood effect composite glazed front door in Black
French door / bifold (plot specific) to rear in Agate Grey.
Oak veneer Genoa internal doors with high end chrome ironmongery.
External Specification
1 x bib tap per property.
Turf, landscaping, and planting generally.
Tarmac private access road and resin gravel driveway / parking areas.
Coursed local stone with Natural blue slates to roof and natural stone ridge tiles. Or Random local stone with Yorkshire stone slates to roof and natural stone ridge tiles. New sawn natural window surrounds to dwellings.
Natural stone and copings to wall tops with galvanised and painted railings and gates.
Timber gated gardens (where isolated from railings) as / where required with fence panels.
Natural stone flags to patios and paths with feature hand railing / balustrading as required to external steps / retaining walls.
Garage (Where applicable)
Single / double garage with electronically operated door.
PIR’s to the garage including door contacts to alarm system.
Electric points in garage.
Note: - Communally owned green space to be run by a “Management” Company.
Each property will be Freehold. Private roads off the adopted highway and certain areas of open green space and other common infrastructure (including surface water attenuation) within the development will be communally owned and run by the Management Company. Each home will make a proportionate contribution towards this cost. On completion an initial payment on account of service charge will be payable in the sum of £250 together with a contribution to the costs of forming the management company and issuing shares following sale of the last plot in the development in the sum of £100.
These particulars are intended only to give a fair description of the property as a guide to buyers. Their accuracy is not guaranteed and neither R N Wooler & Co Ltd nor HARRISON BOOTHMAN accept any liability in respect of their contents, they do not constitute any offer or contract of sale and any prospective purchaser should satisfy themselves by inspection or otherwise as to the correctness of any statement or information on these particulars.
These particulars do not constitute an offer or contract of sale.
Any prospective purchaser should satisfy themselves by inspection of the property.



